Aukce skončila.
Cena dosažená vydražením činí
32 300 Kč
Nejvyšší nabídku učinil účastník aukce
ID876236
Aukce pronájmu bytu z majetku Městské části Praha 3. Uzávěrka přihlášek do aukce včetně složení kauce do 23. 10. 2025 do 18:00 hod (více v aukční kartě).
Účastnit aukce se mohou pouze fyzické osoby – občané ČR, členského státu Evropské unie, Ukrajiny nebo členského státu ESVO, tj. Lichtenštejnska, Švýcarska, Norska a Islandu.
Poloha:
Dům je umístěn v dolní části ulice Jeseniova, mezi gymnáziem na Komenského náměstí a křižovatkou s ulicí Ostromečská, v oblasti zrekonstruovaných panelových domů a nové výstavby. V okolí se nachází mateřské, základní, střední i vysoké školy a další občanská vybavenost. Dobrá dopravní dostupnost do centra, zastávka busu Lukášova směr Florenc necelých 400 m, zastávka Rokycanova směr Florenc, Flora a Háje aj. cca 400 m.
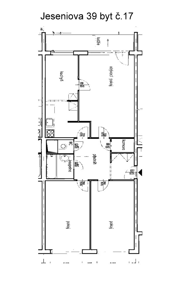
Popis bytu:
Byt po celkové rekonstrukci se nachází v 5. patře zrekonstruovaného panelového domu s výtahem.
Dispozice: byt se sestává ze 3 pokojů, kuchyně, koupelny, WC, komory, předsíně a lodžie. Zasklená lodžie je orientovaná na jih do ulice Jeseniova, má vstup z obývacího pokoje a je vybavena roztahovacím sušákem na prádlo. Okna ložnic jsou orientována na sever do vnitrobloku, okna kuchyně a obýváku na lodžii.
Kuchyňská linka je vybavená dřezem, digestoří a sporákem se sklokeramickou deskou a troubou. Pod dřezem je příprava na připojení pračky a/nebo myčky, které lze umístit vele linky.
Koupelna je zařízena vanou, umyvadlem a elektrickým topným žebříkem.
Okna jsou plastová s vnitřními žaluziemi.
Podlahy: vinylové, v koupelně a WC dlažba.
Topení a teplá voda jsou zajištěno centrálně.
Výměry místností[1]:
Obytná místnost | 18,70 m2 |
Obytná místnost | 12,70 m2 |
Obytná místnost | 12,40 m2 |
Kuchyně | 12,60 m2 |
Koupelna | 2,80 m2 |
WC | 1,00 m2 |
Komora | 1,50 m2 |
Lodžie | 6,82 m2 |
Celkem | 76,52 m2 |
Třída energetické náročnosti budovy: B
Zálohy za služby pro 1 osobu/měsíc: 2 455 Kč, v tom topení 1 800 Kč/byt, elektřina se převádí na nájemce.
Vyvolávací cena: 11 500 Kč/měsíc
Prohlídky 3 bytů – 2. část:
· středa 15. 10. 2025, 16:30 - 17:30
· úterý 21. 10. 2025, 16:30 - 17:30
Byt si můžete prohlédnout kdykoliv ve vymezeném čase, nemusíte se objednávat.
Termíny prohlídek se mohou změnit.
Adresa: Jeseniova 450/39, Praha 3 – Žižkov
Zodpovědná osoba:
Ing. Zdeněk Břeh
E-mail: zdenek.breh@gavlas.cz
Mobil: 777 721 509
Tel.: 221 666 666
[1] dle Evidenčního listu
Aukční karta: Aukční karta - Jeseniova 450,17.pdf
NÁVOD _ Jak se zúčastnit aukce pronájmu bytu Praha 3 _ 11.VŘ.pdf
MANUAL _ How to participate in the auction Praha 3 _ 11.VŘ.pdf
4. NÁVOD _ Jak přihazovat v aukci.pdf
3. MANUAL _ How to bid at an auction with an auction wallet.pdf
Podminky_11._VR_P3_-_pronajmy_bytu_platne.pdf
Příloha č.2_vzor nájemní smlouvy.pdf
Příloha č.1_seznam bytových jednotek.pdf
Plánek - Jeseniova 39, byt č. 17.pdf
| Účastník aukce | Čas příhozu | Výše příhozu | Nabídka |
|---|---|---|---|
| 876236 | 31.10.2025 15:23:18.404 | 100,- | 32 300,- |
| 870539 | 31.10.2025 15:21:47.108 | 100,- | 32 200,- |
| 876236 | 31.10.2025 15:19:53.781 | 100,- | 32 100,- |
| 870539 | 31.10.2025 15:18:12.281 | 500,- | 32 000,- |
| 876236 | 31.10.2025 15:16:45.361 | 400,- | 31 500,- |
| 870539 | 31.10.2025 15:15:27.118 | 100,- | 31 100,- |
| 876236 | 31.10.2025 15:13:59.146 | 100,- | 31 000,- |
| 870539 | 31.10.2025 15:13:50.984 | 100,- | 30 900,- |
| 876236 | 31.10.2025 15:13:45.268 | 100,- | 30 800,- |
| 870539 | 31.10.2025 15:12:46.817 | 100,- | 30 700,- |
| 876236 | 31.10.2025 15:12:37.735 | 100,- | 30 600,- |
| 870539 | 31.10.2025 15:11:59.190 | 100,- | 30 500,- |
| 876236 | 31.10.2025 15:11:46.389 | 100,- | 30 400,- |
| 870539 | 31.10.2025 15:11:30.772 | 100,- | 30 300,- |
| 876236 | 31.10.2025 15:11:24.887 | 100,- | 30 200,- |
| 870539 | 31.10.2025 15:11:08.338 | 100,- | 30 100,- |
| 876236 | 31.10.2025 15:11:00.159 | 100,- | 30 000,- |
| 870539 | 31.10.2025 15:09:30.052 | 100,- | 29 900,- |
| 876236 | 31.10.2025 15:09:25.060 | 100,- | 29 800,- |
| 870539 | 31.10.2025 15:08:47.555 | 100,- | 29 700,- |
| 876236 | 31.10.2025 15:08:34.131 | 100,- | 29 600,- |
| 870539 | 31.10.2025 15:08:28.937 | 100,- | 29 500,- |
| 876236 | 31.10.2025 15:08:12.546 | 100,- | 29 400,- |
| 870539 | 31.10.2025 15:06:43.540 | 100,- | 29 300,- |
| 876236 | 31.10.2025 15:05:20.980 | 100,- | 29 200,- |
| 870539 | 31.10.2025 15:05:15.506 | 100,- | 29 100,- |
| 876236 | 31.10.2025 15:03:49.772 | 100,- | 29 000,- |
| 874351 | 31.10.2025 15:03:28.895 | 100,- | 28 900,- |
| 864474 | 31.10.2025 15:03:22.978 | 100,- | 28 800,- |
| 870539 | 31.10.2025 15:03:19.955 | 100,- | 28 700,- |
| 876236 | 31.10.2025 15:01:49.210 | 100,- | 28 600,- |
| 864474 | 31.10.2025 15:01:44.913 | 100,- | 28 500,- |
| 876236 | 31.10.2025 15:01:38.559 | 100,- | 28 400,- |
| 874351 | 31.10.2025 15:01:21.095 | 100,- | 28 300,- |
| 876236 | 31.10.2025 15:00:14.857 | 100,- | 28 200,- |
| 864724 | 31.10.2025 14:59:47.939 | 100,- | 28 100,- |
| 876236 | 31.10.2025 14:59:17.499 | 100,- | 28 000,- |
| 864474 | 31.10.2025 14:59:11.984 | 100,- | 27 900,- |
| 876236 | 31.10.2025 14:58:57.756 | 100,- | 27 800,- |
| 864474 | 31.10.2025 14:58:47.942 | 100,- | 27 700,- |
| 876236 | 31.10.2025 14:58:39.505 | 100,- | 27 600,- |
| 864474 | 31.10.2025 14:58:33.151 | 100,- | 27 500,- |
| 870539 | 31.10.2025 14:58:27.896 | 100,- | 27 400,- |
| 876236 | 31.10.2025 14:58:22.596 | 100,- | 27 300,- |
| 864474 | 31.10.2025 14:58:16.292 | 100,- | 27 200,- |
| 870539 | 31.10.2025 14:58:10.047 | 100,- | 27 100,- |
| 876236 | 31.10.2025 14:57:57.585 | 100,- | 27 000,- |
| 864474 | 31.10.2025 14:57:56.089 | 100,- | 26 900,- |
| 870539 | 31.10.2025 14:57:46.404 | 100,- | 26 800,- |
| 864474 | 31.10.2025 14:57:36.606 | 100,- | 26 700,- |
| 870539 | 31.10.2025 14:57:26.027 | 100,- | 26 600,- |
| 864474 | 31.10.2025 14:57:06.086 | 100,- | 26 500,- |
| 870539 | 31.10.2025 14:56:46.983 | 100,- | 26 400,- |
| 864474 | 31.10.2025 14:56:10.353 | 100,- | 26 300,- |
| 864724 | 31.10.2025 14:55:38.031 | 100,- | 26 200,- |
| 874351 | 31.10.2025 14:53:45.363 | 100,- | 26 100,- |
| 871969 | 31.10.2025 14:51:35.266 | 100,- | 26 000,- |
| 868244 | 31.10.2025 14:51:18.214 | 100,- | 25 900,- |
| 864724 | 31.10.2025 14:49:46.819 | 100,- | 25 800,- |
| 868244 | 31.10.2025 14:49:02.422 | 100,- | 25 700,- |
| 871969 | 31.10.2025 14:41:30.205 | 100,- | 25 600,- |
| 876371 | 31.10.2025 14:41:19.436 | 100,- | 25 500,- |
| 871969 | 31.10.2025 14:41:10.354 | 100,- | 25 400,- |
| 874261 | 31.10.2025 14:40:17.219 | 100,- | 25 300,- |
| 871969 | 31.10.2025 14:40:11.519 | 100,- | 25 200,- |
| 874261 | 31.10.2025 14:39:58.245 | 100,- | 25 100,- |
| 871969 | 31.10.2025 14:39:52.099 | 100,- | 25 000,- |
| 874261 | 31.10.2025 14:39:43.103 | 100,- | 24 900,- |
| 871969 | 31.10.2025 14:37:02.257 | 100,- | 24 800,- |
| 876371 | 31.10.2025 14:36:49.568 | 100,- | 24 700,- |
| 871969 | 31.10.2025 14:35:19.211 | 100,- | 24 600,- |
| 874261 | 31.10.2025 14:35:13.708 | 100,- | 24 500,- |
| 871969 | 31.10.2025 14:35:06.998 | 100,- | 24 400,- |
| 874261 | 31.10.2025 14:34:53.511 | 100,- | 24 300,- |
| 871969 | 31.10.2025 14:34:47.450 | 100,- | 24 200,- |
| 874261 | 31.10.2025 14:34:30.275 | 100,- | 24 100,- |
| 871969 | 31.10.2025 14:33:56.800 | 100,- | 24 000,- |
| 874261 | 31.10.2025 14:30:14.330 | 100,- | 23 900,- |
| 876371 | 31.10.2025 14:29:24.903 | 100,- | 23 800,- |
| 874261 | 31.10.2025 14:20:03.323 | 100,- | 23 700,- |
| 876371 | 31.10.2025 14:07:26.464 | 100,- | 23 600,- |
| 864724 | 31.10.2025 14:03:05.916 | 100,- | 23 500,- |
| 874261 | 31.10.2025 14:00:12.195 | 100,- | 23 400,- |
| 876371 | 31.10.2025 13:59:42.492 | 100,- | 23 300,- |
| 874261 | 31.10.2025 13:57:32.300 | 100,- | 23 200,- |
| 876371 | 31.10.2025 13:57:09.375 | 100,- | 23 100,- |
| 874261 | 31.10.2025 13:56:59.982 | 100,- | 23 000,- |
| 876371 | 31.10.2025 13:56:53.796 | 100,- | 22 900,- |
| 874261 | 31.10.2025 13:49:09.276 | 100,- | 22 800,- |
| 876371 | 31.10.2025 13:47:16.275 | 100,- | 22 700,- |
| 874261 | 31.10.2025 13:46:12.734 | 100,- | 22 600,- |
| 876371 | 31.10.2025 13:45:50.503 | 100,- | 22 500,- |
| 874261 | 31.10.2025 13:44:58.718 | 100,- | 22 400,- |
| 876371 | 31.10.2025 13:44:48.980 | 100,- | 22 300,- |
| 874261 | 31.10.2025 13:44:40.209 | 100,- | 22 200,- |
| 876371 | 31.10.2025 13:44:35.458 | 100,- | 22 100,- |
| 874261 | 31.10.2025 13:41:56.719 | 100,- | 22 000,- |
| 876371 | 31.10.2025 13:39:47.088 | 100,- | 21 900,- |
| 874261 | 31.10.2025 13:38:08.972 | 100,- | 21 800,- |
| 876371 | 31.10.2025 13:33:12.523 | 100,- | 21 700,- |
| 874261 | 31.10.2025 13:30:45.546 | 100,- | 21 600,- |
| 876371 | 31.10.2025 13:30:16.441 | 100,- | 21 500,- |
| 874261 | 31.10.2025 13:28:37.440 | 100,- | 21 400,- |
| 876371 | 31.10.2025 13:28:32.802 | 100,- | 21 300,- |
| 874261 | 31.10.2025 13:26:45.395 | 100,- | 21 200,- |
| 876371 | 31.10.2025 13:25:40.973 | 100,- | 21 100,- |
| 874261 | 31.10.2025 13:25:32.278 | 100,- | 21 000,- |
| 876371 | 31.10.2025 13:25:21.527 | 100,- | 20 900,- |
| 874261 | 31.10.2025 13:25:04.196 | 100,- | 20 800,- |
| 864269 | 31.10.2025 13:24:50.975 | 800,- | 20 700,- |
| 874261 | 31.10.2025 13:24:48.333 | 100,- | 19 900,- |
| 876371 | 31.10.2025 13:24:43.341 | 100,- | 19 800,- |
| 864269 | 31.10.2025 13:24:29.528 | 300,- | 19 700,- |
| 876371 | 31.10.2025 13:24:18.479 | 100,- | 19 400,- |
| 874261 | 31.10.2025 13:23:53.454 | 100,- | 19 300,- |
| 864269 | 31.10.2025 13:23:39.080 | 300,- | 19 200,- |
| 874261 | 31.10.2025 13:23:11.605 | 100,- | 18 900,- |
| 864269 | 31.10.2025 13:22:45.495 | 500,- | 18 800,- |
| 874261 | 31.10.2025 13:21:57.731 | 100,- | 18 300,- |
| 876371 | 31.10.2025 13:21:05.035 | 100,- | 18 200,- |
| 874261 | 31.10.2025 13:18:50.616 | 100,- | 18 100,- |
| 869470 | 31.10.2025 13:15:52.726 | 100,- | 18 000,- |
| 874261 | 31.10.2025 13:15:11.817 | 100,- | 17 900,- |
| 864269 | 31.10.2025 13:13:44.631 | 1 000,- | 17 800,- |
| 876371 | 31.10.2025 13:11:16.593 | 100,- | 16 800,- |
| 864269 | 31.10.2025 13:09:15.060 | 100,- | 16 700,- |
| 874261 | 31.10.2025 13:08:27.977 | 100,- | 16 600,- |
| 871310 | 31.10.2025 13:07:06.041 | 100,- | 16 500,- |
| 876371 | 31.10.2025 13:04:45.174 | 100,- | 16 400,- |
| 874261 | 31.10.2025 13:04:29.689 | 100,- | 16 300,- |
| 876371 | 31.10.2025 13:04:21.240 | 400,- | 16 200,- |
| 871310 | 31.10.2025 13:02:49.263 | 100,- | 15 800,- |
| 876371 | 31.10.2025 13:02:43.799 | 100,- | 15 700,- |
| 874261 | 31.10.2025 13:02:06.387 | 100,- | 15 600,- |
| 871310 | 31.10.2025 13:02:03.658 | 100,- | 15 500,- |
| 864269 | 31.10.2025 13:00:45.952 | 100,- | 15 400,- |
| 874261 | 31.10.2025 13:00:45.106 | 100,- | 15 300,- |
| 864269 | 31.10.2025 13:00:42.542 | 500,- | 15 200,- |
| 876371 | 31.10.2025 13:00:02.958 | 100,- | 14 700,- |
| 874261 | 31.10.2025 12:59:39.158 | 100,- | 14 600,- |
| 864269 | 31.10.2025 12:57:55.071 | 100,- | 14 500,- |
| 874261 | 31.10.2025 12:56:56.493 | 100,- | 14 400,- |
| 871310 | 31.10.2025 12:56:05.317 | 100,- | 14 300,- |
| 876371 | 31.10.2025 12:51:16.796 | 100,- | 14 200,- |
| 868244 | 31.10.2025 12:46:15.489 | 100,- | 14 100,- |
| 876371 | 31.10.2025 12:11:22.276 | 100,- | 14 000,- |
| 874261 | 31.10.2025 12:06:26.617 | 100,- | 13 900,- |
| 876371 | 31.10.2025 11:58:43.037 | 100,- | 13 800,- |
| 874261 | 31.10.2025 11:56:27.230 | 100,- | 13 700,- |
| 876371 | 31.10.2025 11:55:31.851 | 100,- | 13 600,- |
| 874261 | 31.10.2025 11:51:01.667 | 100,- | 13 500,- |
| 876371 | 31.10.2025 10:11:57.878 | 100,- | 13 400,- |
| 864724 | 31.10.2025 10:05:36.074 | 100,- | 13 300,- |
| 876371 | 31.10.2025 09:49:56.491 | 100,- | 13 200,- |
| 864724 | 31.10.2025 07:44:30.225 | 100,- | 13 100,- |
| 876371 | 30.10.2025 16:55:13.970 | 200,- | 13 000,- |
| 864474 | 30.10.2025 14:35:52.099 | 100,- | 12 800,- |
| 864724 | 30.10.2025 14:28:00.464 | 100,- | 12 700,- |
| 876691 | 30.10.2025 13:49:39.947 | 100,- | 12 600,- |
| 868130 | 30.10.2025 13:08:09.012 | 100,- | 12 500,- |
| 874261 | 30.10.2025 11:03:47.858 | 100,- | 12 400,- |
| 865065 | 30.10.2025 10:42:25.085 | 100,- | 12 300,- |
| 864724 | 30.10.2025 10:08:15.179 | 100,- | 12 200,- |
| 869470 | 30.10.2025 10:07:54.571 | 100,- | 12 100,- |
| 874830 | 30.10.2025 10:07:08.995 | 500,- | 12 000,- |