Aukce skončila.
Cena dosažená vydražením činí
20 705 Kč
Nejvyšší nabídku učinil účastník aukce
ID895923
Aukce pronájmu bytu z majetku Městské části Praha 3. Uzávěrka přihlášek do aukce včetně složení kauce do 24. 3. 2026 do 18:00 hod (více v aukční kartě).
Účastnit aukce se mohou pouze fyzické osoby – občané ČR, členského státu Evropské unie, Ukrajiny nebo členského státu ESVO, tj. Lichtenštejnska, Švýcarska, Norska a Islandu.
Poloha:
Dům se nachází v klidné okrajové části Vinohrad. Výborná dopravní dostupnost do centra – stanice metra Želivského, zastávky tramvaje a autobusové stanoviště Želivského 5 min chůze. Občanská vybavenost se nachází u Vinohradské třídy, v ulici Starostrašnická nebo na Floře.
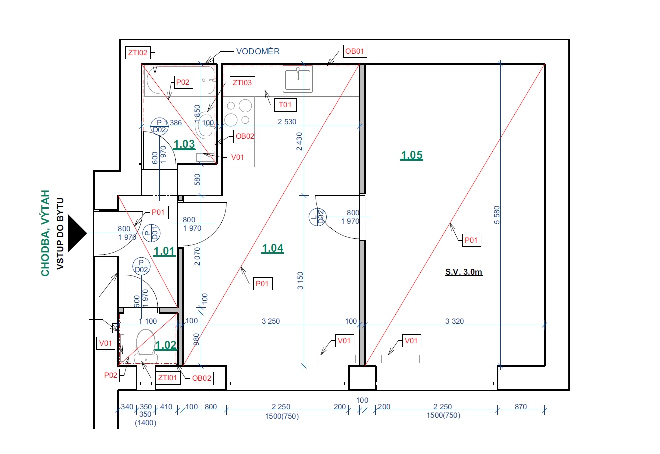
Popis bytu:
Byt se nachází ve 3. patře zrekonstruovaného prvorepublikového šestipodlažního domu bez výtahu.
Dispozice: z chodby domu se vchází do předsíně, ze které je vstup do kuchyně, koupelny, WC a komory. Z kuchyně je dále vstup do pokoje. Okna jsou orientována na západ do zeleného vnitrobloku s dětskými hřišti, z předsíně je menší okno do lodžie v patře domu.
Kuchyňská linka je vybavena dřezem, el. sporákem s troubou a digestoří. Pod linkou jsou místa pro myčka a pračku a jejich připojení. Koupelna je zařízena sprchou, umyvadlem a radiátorem ÚT. Samostatné WC je vybaveno kombi mísou.
Podlahy: vinyl, v koupelně a WC dlažba. Okna dřevěná euro.
Topení a teplá voda jsou zajištěny centrálně.
Výměry místností[1]:
Pokoj | 18,41 m2 |
Kuchyně | 16,53 m2 |
WC | 0,96 m2 |
Koupelna | 2,59 m2 |
Komora | 0,52 m2 |
Předsíň | 2,52 m2 |
| 41,53 m2 |
Sklep | 3,30 m2 |
Třída energetické náročnosti budovy: D
Zálohy za služby pro 1 osobu/měsíc: 3 540 Kč, v tom topení 2 900 Kč/byt, elektřina se převádí na nájemce.
Vyvolávací cena: 6 800 Kč/měsíc
Prohlídky:
· úterý 3. 3. 2026, 16:30 - 17:30
· úterý 17. 3. 2026, 16:30 - 17:30
Byt si můžete prohlédnout kdykoliv ve vymezeném čase, nemusíte se objednávat.
Termíny prohlídek mohou být i v průběhu výběrového řízení upraveny.
Adresa: Hollarovo nám.2260/5, Praha 3 – Vinohrady
Zodpovědná osoba:
Ing. Zdeněk Břeh
E-mail: zdenek.breh@gavlas.cz
Mobil: 777 721 509
Tel.: 221 666 666
[1]dle Evidenčního listu
Pronájem bytové jednotky č. 2260/13 (v Evidenčním listu byt veden pod č. bytu/ev. číslo 13) umístěné v budově č.p. 2260 v katastrálním území Vinohrady, obec Praha
Aukční karta: Aukční karta - Hollarovo nám 2260,13, IGN.pdf
1. NÁVOD _ Jak se zúčastnit aukce pronájmu bytu Praha 3 _ 13.VŘ.pdf
2. MANUAL _ How to participate in the auction Praha 3 _ 13.VŘ.pdf
3. NÁVOD _ Jak přihazovat v aukci.pdf
4.MANUAL _ How to bid at an auction with an auction wallet.pdf
Podminky_13._VR_P3_-_pronajmy_bytu_prilohy.pdf
Příloha č.1 - seznam bytových jednotek_Podmínky_13.VR.P3.pdf
Příloha č.2 - vzor nájemní smlouvy_Podmínky_13.VR.P3.pdf
PENB Hollarovo nám 2259-3_2014.pdf
Plánek Hollarovo nám. 5 byt č. 13.pdf
| Účastník aukce | Čas příhozu | Výše příhozu | Nabídka |
|---|---|---|---|
| 895923 | 31.03.2026 15:10:49.662 | 100,- | 20 705,- |
| 907209 | 31.03.2026 15:09:40.483 | 100,- | 20 605,- |
| 895923 | 31.03.2026 15:08:25.763 | 100,- | 20 505,- |
| 907209 | 31.03.2026 15:07:19.339 | 100,- | 20 405,- |
| 895923 | 31.03.2026 15:07:10.315 | 100,- | 20 305,- |
| 907209 | 31.03.2026 15:06:09.820 | 100,- | 20 205,- |
| 895923 | 31.03.2026 15:06:05.988 | 100,- | 20 105,- |
| 907209 | 31.03.2026 15:04:52.829 | 100,- | 20 005,- |
| 903415 | 31.03.2026 15:04:50.515 | 100,- | 19 905,- |
| 907209 | 31.03.2026 15:04:43.218 | 100,- | 19 805,- |
| 903415 | 31.03.2026 15:04:39.201 | 100,- | 19 705,- |
| 907209 | 31.03.2026 15:03:53.391 | 100,- | 19 605,- |
| 903415 | 31.03.2026 15:03:47.578 | 100,- | 19 505,- |
| 907209 | 31.03.2026 15:03:43.040 | 100,- | 19 405,- |
| 903415 | 31.03.2026 15:03:37.673 | 100,- | 19 305,- |
| 907209 | 31.03.2026 15:02:43.153 | 100,- | 19 205,- |
| 903415 | 31.03.2026 15:02:37.780 | 104,- | 19 105,- |
| 907209 | 31.03.2026 15:02:25.910 | 100,- | 19 001,- |
| 906980 | 31.03.2026 15:02:20.731 | 100,- | 18 901,- |
| 907209 | 31.03.2026 15:02:04.529 | 100,- | 18 801,- |
| 906980 | 31.03.2026 15:01:58.302 | 100,- | 18 701,- |
| 907209 | 31.03.2026 15:01:42.867 | 100,- | 18 601,- |
| 903415 | 31.03.2026 15:01:41.688 | 100,- | 18 501,- |
| 906980 | 31.03.2026 15:01:37.613 | 100,- | 18 401,- |
| 903415 | 31.03.2026 15:01:35.525 | 100,- | 18 301,- |
| 907209 | 31.03.2026 15:01:30.628 | 100,- | 18 201,- |
| 903415 | 31.03.2026 15:01:26.565 | 100,- | 18 101,- |
| 907209 | 31.03.2026 15:01:23.617 | 100,- | 18 001,- |
| 903415 | 31.03.2026 15:01:20.490 | 100,- | 17 901,- |
| 907209 | 31.03.2026 15:01:15.035 | 100,- | 17 801,- |
| 903415 | 31.03.2026 15:01:11.302 | 100,- | 17 701,- |
| 907209 | 31.03.2026 15:01:07.768 | 100,- | 17 601,- |
| 903415 | 31.03.2026 15:01:05.889 | 100,- | 17 501,- |
| 907209 | 31.03.2026 15:01:03.118 | 100,- | 17 401,- |
| 903415 | 31.03.2026 15:00:58.772 | 100,- | 17 301,- |
| 907209 | 31.03.2026 15:00:52.892 | 100,- | 17 201,- |
| 903415 | 31.03.2026 15:00:51.408 | 100,- | 17 101,- |
| 907209 | 31.03.2026 15:00:46.045 | 100,- | 17 001,- |
| 903415 | 31.03.2026 15:00:40.527 | 100,- | 16 901,- |
| 907209 | 31.03.2026 15:00:37.900 | 100,- | 16 801,- |
| 903415 | 31.03.2026 15:00:33.927 | 100,- | 16 701,- |
| 907209 | 31.03.2026 15:00:25.425 | 100,- | 16 601,- |
| 903415 | 31.03.2026 15:00:11.702 | 100,- | 16 501,- |
| 907209 | 31.03.2026 15:00:04.885 | 100,- | 16 401,- |
| 903415 | 31.03.2026 14:59:12.152 | 100,- | 16 301,- |
| 907209 | 31.03.2026 14:59:08.395 | 100,- | 16 201,- |
| 906980 | 31.03.2026 14:59:06.325 | 100,- | 16 101,- |
| 895923 | 31.03.2026 14:59:04.419 | 100,- | 16 001,- |
| 905140 | 31.03.2026 14:58:03.947 | 100,- | 15 901,- |
| 905980 | 31.03.2026 14:57:03.984 | 100,- | 15 801,- |
| 903415 | 31.03.2026 14:56:14.566 | 100,- | 15 701,- |
| 911226 | 31.03.2026 14:56:05.579 | 100,- | 15 601,- |
| 903415 | 31.03.2026 14:55:59.529 | 101,- | 15 501,- |
| 895923 | 31.03.2026 14:55:45.642 | 131,- | 15 400,- |
| 905140 | 31.03.2026 14:55:11.209 | 100,- | 15 269,- |
| 910635 | 31.03.2026 14:54:48.338 | 164,- | 15 169,- |
| 899738 | 31.03.2026 14:54:24.862 | 100,- | 15 005,- |
| 911226 | 31.03.2026 14:53:20.049 | 100,- | 14 905,- |
| 906980 | 31.03.2026 14:42:23.059 | 100,- | 14 805,- |
| 905140 | 31.03.2026 14:41:52.595 | 100,- | 14 705,- |
| 909115 | 31.03.2026 14:35:19.787 | 100,- | 14 605,- |
| 906980 | 31.03.2026 14:34:57.844 | 100,- | 14 505,- |
| 909115 | 31.03.2026 14:33:33.100 | 100,- | 14 405,- |
| 912975 | 31.03.2026 14:25:08.345 | 100,- | 14 305,- |
| 906980 | 31.03.2026 14:23:48.873 | 100,- | 14 205,- |
| 905140 | 31.03.2026 14:21:13.160 | 100,- | 14 105,- |
| 909115 | 31.03.2026 14:20:24.027 | 100,- | 14 005,- |
| 905980 | 31.03.2026 14:14:02.704 | 100,- | 13 905,- |
| 895923 | 31.03.2026 14:13:54.786 | 100,- | 13 805,- |
| 909344 | 31.03.2026 14:07:32.412 | 100,- | 13 705,- |
| 909115 | 31.03.2026 14:03:51.284 | 100,- | 13 605,- |
| 895923 | 31.03.2026 14:03:04.850 | 100,- | 13 505,- |
| 906980 | 31.03.2026 14:00:37.094 | 100,- | 13 405,- |
| 909115 | 31.03.2026 13:56:46.646 | 100,- | 13 305,- |
| 895923 | 31.03.2026 13:55:47.843 | 100,- | 13 205,- |
| 909115 | 31.03.2026 13:29:02.734 | 100,- | 13 105,- |
| 911226 | 31.03.2026 13:28:23.494 | 200,- | 13 005,- |
| 909115 | 31.03.2026 13:00:02.815 | 100,- | 12 805,- |
| 906980 | 31.03.2026 12:54:30.151 | 100,- | 12 705,- |
| 909115 | 31.03.2026 12:41:00.380 | 100,- | 12 605,- |
| 906980 | 31.03.2026 12:39:40.793 | 100,- | 12 505,- |
| 909115 | 31.03.2026 12:24:05.256 | 100,- | 12 405,- |
| 906980 | 31.03.2026 12:17:17.466 | 100,- | 12 305,- |
| 905140 | 31.03.2026 12:17:02.407 | 100,- | 12 205,- |
| 906980 | 31.03.2026 12:10:42.025 | 100,- | 12 105,- |
| 909115 | 31.03.2026 12:02:10.987 | 100,- | 12 005,- |
| 906980 | 31.03.2026 11:34:42.089 | 100,- | 11 905,- |
| 909115 | 31.03.2026 11:30:46.531 | 100,- | 11 805,- |
| 905140 | 31.03.2026 11:29:36.624 | 100,- | 11 705,- |
| 909115 | 31.03.2026 11:22:09.197 | 100,- | 11 605,- |
| 906980 | 31.03.2026 11:07:40.210 | 100,- | 11 505,- |
| 909115 | 31.03.2026 11:01:36.534 | 100,- | 11 405,- |
| 906980 | 31.03.2026 10:55:39.462 | 100,- | 11 305,- |
| 909115 | 31.03.2026 10:53:06.214 | 100,- | 11 205,- |
| 906980 | 31.03.2026 10:26:49.456 | 100,- | 11 105,- |
| 909115 | 31.03.2026 10:21:58.996 | 100,- | 11 005,- |
| 905140 | 31.03.2026 10:15:43.125 | 100,- | 10 905,- |
| 909115 | 31.03.2026 10:14:35.540 | 100,- | 10 805,- |
| 905140 | 31.03.2026 10:14:22.358 | 100,- | 10 705,- |
| 909115 | 31.03.2026 10:11:55.112 | 100,- | 10 605,- |
| 906980 | 31.03.2026 10:11:33.584 | 100,- | 10 505,- |
| 909115 | 31.03.2026 10:05:33.129 | 100,- | 10 405,- |
| 906980 | 31.03.2026 10:02:25.739 | 100,- | 10 305,- |
| 909115 | 31.03.2026 09:57:02.299 | 100,- | 10 205,- |
| 906980 | 31.03.2026 09:54:58.761 | 100,- | 10 105,- |
| 909115 | 31.03.2026 09:41:42.247 | 100,- | 10 005,- |
| 895923 | 31.03.2026 09:29:43.493 | 100,- | 9 905,- |
| 909115 | 31.03.2026 08:15:24.875 | 100,- | 9 805,- |
| 906980 | 31.03.2026 08:06:11.093 | 100,- | 9 705,- |
| 909115 | 31.03.2026 07:38:25.566 | 100,- | 9 605,- |
| 906980 | 30.03.2026 22:19:19.864 | 100,- | 9 505,- |
| 909115 | 30.03.2026 18:30:33.419 | 100,- | 9 405,- |
| 896149 | 30.03.2026 18:17:00.411 | 100,- | 9 305,- |
| 909115 | 30.03.2026 17:38:17.941 | 100,- | 9 205,- |
| 906980 | 30.03.2026 16:48:24.352 | 100,- | 9 105,- |
| 909115 | 30.03.2026 16:42:35.007 | 100,- | 9 005,- |
| 906980 | 30.03.2026 16:42:16.975 | 100,- | 8 905,- |
| 909115 | 30.03.2026 16:41:35.119 | 100,- | 8 805,- |
| 906980 | 30.03.2026 16:38:38.242 | 100,- | 8 705,- |
| 909115 | 30.03.2026 16:34:39.595 | 100,- | 8 605,- |
| 906980 | 30.03.2026 16:33:03.568 | 100,- | 8 505,- |
| 905140 | 30.03.2026 16:03:40.612 | 100,- | 8 405,- |
| 909344 | 30.03.2026 15:11:51.366 | 100,- | 8 305,- |
| 905140 | 30.03.2026 14:36:49.273 | 100,- | 8 205,- |
| 910024 | 30.03.2026 10:14:16.304 | 100,- | 8 105,- |
| 895923 | 30.03.2026 03:42:56.785 | 100,- | 8 005,- |
| 911569 | 29.03.2026 13:40:17.814 | 100,- | 7 905,- |
| 905140 | 29.03.2026 13:26:25.980 | 100,- | 7 805,- |
| 911569 | 29.03.2026 00:19:06.940 | 100,- | 7 705,- |
| 895923 | 29.03.2026 00:15:57.855 | 104,- | 7 605,- |
| 911569 | 28.03.2026 21:44:27.841 | 100,- | 7 501,- |
| 906369 | 28.03.2026 20:28:38.693 | 100,- | 7 401,- |
| 910635 | 28.03.2026 19:29:06.665 | 100,- | 7 301,- |
| 910635 | 28.03.2026 19:29:02.686 | 101,- | 7 201,- |
| 905140 | 27.03.2026 12:09:31.430 | 100,- | 7 100,- |
| 910635 | 27.03.2026 11:50:33.089 | 200,- | 7 000,- |